2-Zimmer-Wohnung mit Balkon und Tiefgaragenstellplatz in Freudenstadt-Kniebis
Objektart
Adresse
Objektdaten
Informationen
Ausstattung
Details
Dieses gepflegte Appartementhaus wurde im Jahr 1978 umfassend umgebaut und umfasst insgesamt 36 Eigentumswohnungen. Die Anlage wird überwiegend als Ferienunterkunft genutzt, was ihr eine besonders ruhige und entspannte Atmosphäre verleiht. Ein Hausverwalter vor Ort kümmert sich zuverlässig um die Pflege, Sauberkeit und laufende Betreuung der Immobilie, sodass für Eigentümer und Bewohner ein hoher Komfort gewährleistet ist. Im Untergeschoss steht den Bewohnern eine gemeinschaftliche Waschküche mit Münzwaschmaschine und Trockner zur Verfügung. Ein besonderes Highlight der Wohnanlage ist das hauseigene, beheizte Hallenschwimmbad sowie eine Sauna - ideale Voraussetzungen, um nach einem aktiven Tag zu entspannen und den Alltag hinter sich zu lassen.
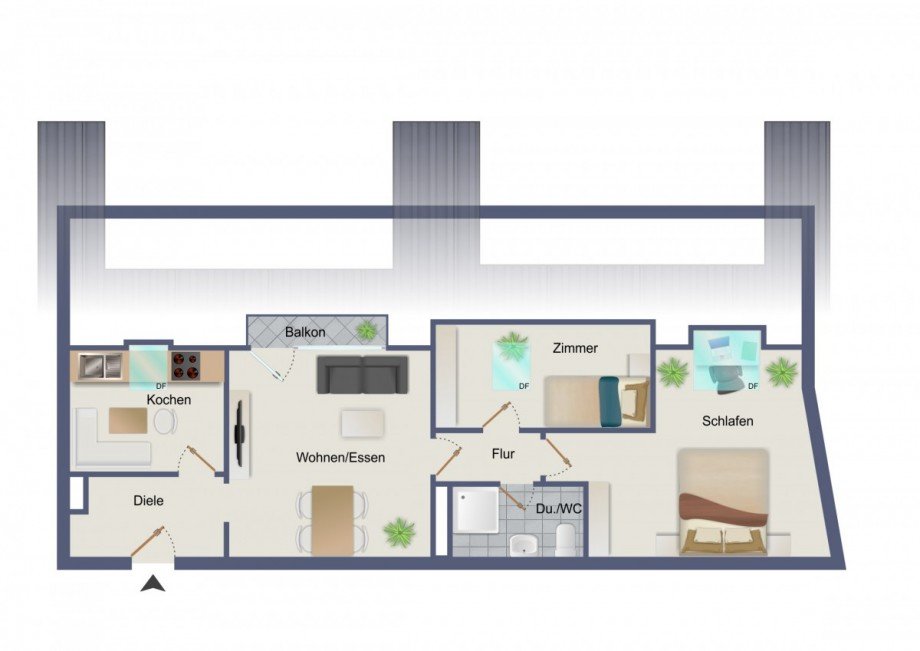
Die angebotene 2-Zimmer-Wohnung befindet sich in der 4. Etage und überzeugt durch eine attraktive Aussicht. Das helle Wohn- und Esszimmer bildet den zentralen Mittelpunkt der Wohnung und bietet direkten Zugang zum sonnigen Balkon mit schönem Blick ins Grüne - ein idealer Ort, um entspannte Stunden zu genießen. Das Schlafzimmer bietet ausreichend Platz für ein Doppelbett und einen Kleiderschrank. Ergänzt wird das Raumangebot durch ein weiteres, kleineres Zimmer, das sich flexibel als Arbeits-, Gäste- oder zusätzliches Schlafzimmer nutzen lässt. Das innenliegende Badezimmer ist mit Dusche, Waschbecken und WC ausgestattet. Die Küche ist platzsparend und funktional gestaltet und verfügt über eine Einbauküche sowie eine integrierte Essecke. Die Wohnung befindet sich in einem dem Baujahr entsprechenden Zustand und bietet somit Potenzial für individuelle Modernisierungs- und Gestaltungsideen. Abgerundet wird das Angebot durch ein eigenes Kellerabteil, das zusätzlichen Stauraum bietet, sowie einen Tiefgaragenstellplatz, der komfortables und sicheres Parken gewährleistet. Die Immobilie eignet sich ideal als Ferienwohnung, kann jedoch ebenso gut dauerhaft bewohnt werden.
Ausstattung der Wohnung:
-Bodenbeläge (Teppichboden, Fliesen)
-Wand Beläge (Raufaser, Tapete)
-Badausstattung (Dusche, Waschbecken, Toilette)
-ältere Einbauküche
-Fenster (Isolierverglast-Holz)
-Rollläden
-sonniger Balkon
-TV-Empfang über Sat-Anlage
-Schöne Raumgröße
- 4. Etage
- Kellerraum
-1 Tiefgaragenstellplatz (unterhalb der Tennishalle)
Haus allgemein:
- Öl-Zentralheizung aus dem Jahre 2001
- Wasch-/Trockenraum mit Münzwaschmaschine und -trockner
- Hausmeisterservice
- beheiztes Hallenbad
- Sauna
Heizkosten (Bewohner) EUR 103,90
Allgemeinkosten (Bewohner) EUR 70,00
Allgemeinkosten (Eigentümer) EUR 46,45
Rücklagenzuführung (Eigentümer) EUR 16,65
________________________________________
Summe Hausgeld monatlich EUR 237,00
Kniebis ist mit knapp 1000 Meter über Normalnull der höchst gelegene Stadtteil Freudenstadts und hat rund 870 Einwohner. Mit seiner idyllischen Höhenlage, direkt an der Schwarzwaldhochstraße und der Nähe zum Nationalpark, ist Kniebis eine beliebte Adresse, nicht nur für Touristen, sondern auch für erholungsuchende Einheimische. Das Schwarzwalddorf ist ein international bekannter Luftkurort und Wintersportplatz. Kniebis bietet schöne Wanderwege und beste Mountainbikebedingungen. Das Kurhaus mit Kniebishalle, ein Skistadion mit beleuchteter und beschneiter Nachtloipe, Skilifte, das Waldschwimmbad sowie das Besucher-zentrum mit Wanderhütte geben dem Ort eine besondere Note. Die einheimischen schätzen vor allem die Lebensqualität auf "ihrem Berg" - der ideale Wohnort, um als Berufspendler in der Freizeit Entschleunigung in der Natur zu genießen. Das Dorfleben und die Dorfgemeinschaft werden geprägt von Vereinen. Die Wohnung liegt in einer absolut ruhigen Wohngegend, direkt am Waldrand.
Unser Service für Sie als Eigentümer: Wir bewerten gerne kostenfrei Ihre Immobilie zum aktuellen Marktwert, entwickeln eine individuelle Verkaufsstrategie und stehen Ihnen über den eigentlichen Verkauf Ihrer Immobilie bis zur erfolgreichen Schlüsselübergabe zur Verfügung. Starten Sie jetzt Ihre kostenlose Erstbewertung unter https://www.frey-immobilien.de/preisfinder. Wir freuen uns Sie persönlich kennen lernen zu dürfen.
Energieausweis (Verbrauchsausweis)
168 kWh / (m²*a) Energieverbrauchskennwert
168 kWh / (m²*a) Energieverbrauchskennwert
168 kWh / (m²*a) Energieverbrauchskennwert
Weitere Informationen
| Wesentlicher Energieträger | Öl |
| Energieausweis Ausstelldatum | 2017-07-27 |
| Energieausweis gültig bis | 27.07.2027 |
| Energieausweis Jahrgang | ab dem 1.5.2014 |
| Energieverbrauch für Warmwasser | enthalten |
| Energieausweis Werteklasse | F |
| Energieausweis Baujahr | 1978 |
| Energieausweis Gebäudeart | Wohngebäude |
| Heizung | Zentralheizung |
| Befeuerung | Öl |
Ich bin damit einverstanden, dass mir Karten von Google angezeigt werden. Es gelten die Datenschutzbedingungen von Google (https://policies.google.com/privacy).
Ich bin einverstanden